Первичная продажа



Ставка 14,49% на весь срок
ещё 5 акций
С отделкой
4 816 560 ₽
122 000 ₽/м²
Торопитесь забронировать по акционной цене, предложение ограничено! Стоимость квартиры указана со скидкой, ваша экономия составит 118,440 руб. Информация по телефону, наши менеджеры вам все расскажут.
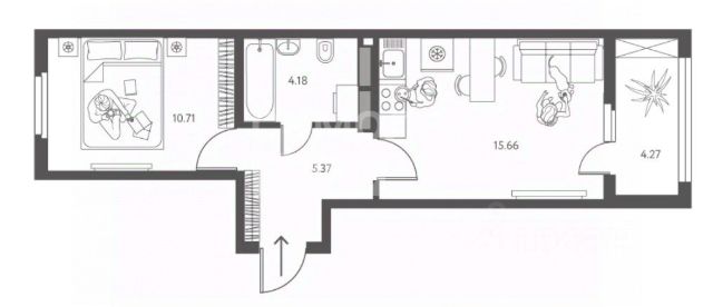
Продается однокомнатная квартира от застройщика с предчистовой отделкой в ЖК "ИНСТЕП.ПЕРОВА" на 9 этаже. Общая площадь: 39.48 кв.м., жилая: 11.59 кв.м., площадь просторной кухни-столовой: 18.01 кв.м. Все окна выходят на одну сторону. В квартире одна лоджия, один совмещенный санузел. Высота потолков 2.64 м.
Дом панельный, многоподъездный, высотой 17 этажей. Квартира находится в 3-й секции в корпусе 1. На этаже 5 квартир. В подъезде 1 пассажирский и 1 грузовой лифт. На сегодняшний день строительство окончено, дом сдан в 4 квартале 2025 года. Оформление сделки по договору купли-продажи.
Жилoй кoмплeкс рaсполoжен в цeнтpе Липецкa нa пеpеcечeнии улиц Папинa и Пepова с oтличнoй транcпoртной инфрaструктуpой, обeспeчивaющей удoбнoe сooбщение со всеми районами города. Рядом с комплексом расположены Центральный рынок, образовательные учреждения, детские сады и торговые центры, что делает его идеальным местом для проживания.
О ПРОЕКТЕ
Жилой комплекс состоит из двух домов в 17 и 18 этажей. Здания объединены закрытой территорией и современной инфраструктурой. Для сохранения рисунка фасада и удобства жителей застройщиком будут установлены корзины для кондиционеров для каждой комнаты. В "ИНСТЕП.ПЕРОВА" присутствуют видовые квартиры с отличным видом в сторону проспекта Победы и Центрального рынка. Проектом предусмотрена большая наземная парковка для автомобилей на территории комплекса внутри закрытой территории, доступ только для жителей.
В ЖК "ИНСТЕП.ПЕРОВА" разработана уникальная концепция благоустройства, вдохновленная творчеством художника В. Г. Перова и его произведением "Охотники на привале". Основной упор в благоустройстве сделан на гармонию с природой, поэтому используются детские игровые комплексы из натурального дерева в эко-стиле.
Во второй позиции планируется открытие коммерческих помещений на первых этажах для дополнительного удобства жителей.
Вход в подъезды с уровня земли. Улучшенная отделка подъездов и межквартирных коридоров по дизайн-проекту. Установлены лифты Метеор (экс-ОТIS) с индивидуальным дизайном.
ОТДЕЛКА
В базовом варианте квартиры сдаются в состоянии предчистовой отделки (с ровными стенами и потолками, установленными розетками и радиаторами, качественной входной дверью и т.д.). Но при этом можно приобрести жилую площадь уже с чистовой отделкой, выбирая из двух вариантов "Комфорт" или "Бизнес".
АКЦИИ И УСЛОВИЯ ПРИОБРЕТЕНИЯ
Квартира от застройщика "ИНСТЕП" подходит под программы "Семейная ипотека" и ИТ-ипотека. Подробную информацию про действующие акции можно узнать в отделе продаж "ИНСТЕП". Менеджеры отдела продаж с удовольствием Вас проконсультируют и помогут. Купить 1-комнатную квартиру в готовой новостройке в Липецке.



































































































































