Мы используем куки-файлы. Соглашение об использовании
Только на Циан
Общая площадь86,9 м²
Участок7,33 сот.
Материал домаГазобетонный блок
Этажей в доме1
Год постройки2018
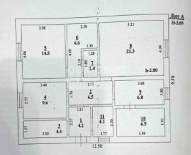
Арт. 134637529 Представляем вашему вниманию уникальное предложение просторный и уютный дом 2018 года постройки, расположенный в живописном с. Ленино Липецкого района, всего в 6 км от города Липецка! Этот объект идеально подходит для тех, кто ищет комфортное жилье за городом с возможностью организации полноценного отдыха и развлечений на своей территории. Здесь уже всё готово для переезда и комфортной жизни заходи и живи! О ДОМЕ (Площадь 86,9 кв.м., высота потолков 3,05 м.): Дом находится в отличном состоянии, выполнен из качественных материалов и полностью готов к проживанию. Подведены все необходимые коммуникации: центральное водоснабжение, газ, электричество 12.5 кВт. Канализация септик. Продуманная планировка и высококачественное оснащение создают атмосферу уюта и функциональности: Просторная жилая комната (21,3 кв.м.) идеальное место для гостиной или совмещенной кухни-гостиной. Здесь уже есть всё необходимое: большой стол, комфортные лавки, диван, телевизор и даже система караоке для веселых вечеров с семьей и друзьями! Уютная спальня или вторая жилая комната (6,5 кв.м.) может использоваться как спальня, детская или рабочий кабинет, предлагая тишину и уединение. Функциональная ванная комната (6,8 кв.м.), оборудованная современной душевой кабиной, освежающим обливным ведром и шикарной купелью всё для вашего комфорта и релакса после долгого дня. Возможность попариться в дровяной бане, которая находится в самом доме. Вся мебель и техника, что представлена на фотографиях, остаётся новым владельцам! Это значит, что вы сможете заехать сразу после сделки без дополнительных затрат на обустройство. ДОПОЛНИТЕЛЬНЫЕ ПРЕИМУЩЕСТВА ДЛЯ КОМФОРТНОЙ ЖИЗНИ И ОТДЫХА: Шикарный банный чан на участке: Идеальное дополнение для семейного отдыха и расслабления на свежем воздухе в любое время года. Вместительная беседка на 12 человек: Отличное место для проведения летних обедов, барбекю и встреч с гостями на свежем воздухе. ГЛАВНЫЕ ПРИЧИНЫ ВЫБРАТЬ ЭТОТ ДОМ: Готовность к проживанию: Вам не потребуется никаких дополнительных вложений в ремонт или мебель дом полностью готов. Отличное состояние: Качественная постройка и исправно функционирующие коммуникации обеспечивают надежность и долговечность. Прекрасное расположение: Близость к городу (всего 6 км от Липецка) сочетается с тишиной и спокойствием загородной жизни. Возможность организации банного бизнеса: Если вы захотите, этот объект также имеет потенциал для использования в качестве банного комплекса, что может стать источником дополнительного дохода. Гарантия юридической чистоты сделки от компании! Один собственник, документы готовы, быстрый выход на сделку. Записывайтесь на показ объекта прямо сейчас! Мы готовы ответить на все ваши вопросы и показать ваш будущий уютный дом!
Позвоните автору
Вам ответят на все вопросы

О доме

Площадь

86,9 м²

Материал дома

Газобетонный блок

Количество этажей

1

Количество спален

2

Год постройки

2018

Об участке

Площадь

7,33 сот.

Статус участка

Личное подсобное хозяйство

Коммуникации и удобства

Санузел

В доме

Канализация

Есть

Водоснабжение

Центральное

Отопление

Автономное газовое

Электричество

Есть

Газ

Есть

Дополнительно

Бассейн

Спросите умного помощника
Получите экспертное мнение о жилье

Расположение

Подпишитесь на объявления в этой локации
Мы сообщим, как только поблизости появится что‑нибудь новенькое
Ипотечный калькулятор
  • Базовая
  • Семейная
  • ИТ-ипотека
  • 20%
  • 30%
  • 40%
  • 50%
лет
  • 10 лет
  • 20 лет
  • 30 лет
Загружаем предложения от застройщика и банков
5,0・1
Документы проверены
Хотите продать недвижимость?Разместите объявление на ЦианРазместить
9 900 000 ₽
Цена за метр
113 924 ₽/м²
Ипотека
возможна
Агентство недвижимости
Документы проверены
На Циан
9 лет
Объектов в работе
332
5,0・1