Мы используем куки-файлы. Соглашение об использовании

Продается 3-комн. квартира, 85 м²

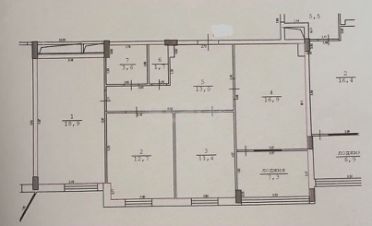
Общая площадь85 м²
Площадь кухни16,9 м²
Этаж8 из 25
Год постройки2025
Продам 3-комнатную квартиру площадью 85,5 кв. м, расположенную на 8 этаже современного жилого комплекса с продуманной инфраструктурой. Пространство организовано по евроформату: кухня-гостиная 16,9 кв. м объединена, что создает ощущение простора, с выходом на отапливаемую лоджию 7,3 кв. м, которая может быть интегрирована в жилую зону после демонтажа балконного блока, что увеличит полезную площадь. Зал - 18,9 кв., и две спальни - 12,7 и 11,4 кв.м. Санузел раздельный. Окна смотрят во двор. Не угловая! Дом оснащен автономной газовой котельной, что снижает затраты на отопление по сравнению с централизованными системами. Придомовая территория закрыта от посторонних, благоустроена детскими и спортивными площадками, а парковка включает подземный и наземный гостевой варианты. Безопасность обеспечивается системой видеонаблюдения. Расположение жилого комплекса сочетает удобство и тишину: в пешей доступности находятся школы, детский сад, магазины, остановка общественного транспорта и Верхний парк для прогулок. Близость к педагогическому университету и пунктам выдачи заказов добавляет практичности. Квартира продается по цене на 1 млн рублей ниже стоимости у застройщика, что делает предложение выгодным для тех, кто ищет качественное жилье без переплат. Состояние объекта — новое, с возможностью индивидуальной отделки под предпочтения будущего владельца. Это рациональный выбор для тех, кто ценит комфорт, экономию на коммунальных расходах и развитую инфраструктуру. Оперативный показ! Звони Код пользователя: 8167 Номер в базе: 8526409
Позвоните автору
Вам ответят на все вопросы

О квартире

Тип жилья

Вторичка

Общая площадь

85 м²

Площадь кухни

16,9 м²

Высота потолков

2,6 м

Санузел

1 совмещенный, 1 раздельный

О доме

Год постройки

2024

Тип перекрытий

Нет информации

Отопление

Нет информации

Аварийность

Нет

Спросите умного помощника
Получите экспертное мнение о жилье

Расположение

Ипотечный калькулятор
  • Базовая
  • Семейная
  • ИТ-ипотека
  • 20%
  • 30%
  • 40%
  • 50%
лет
  • 10 лет
  • 20 лет
  • 30 лет
Загружаем предложения от застройщика и банков
Помощь риелтора
Проверенный риелтор поможет купить или продать квартиру
7 400 000 ₽
Цена за метр
87 059 ₽/м²
Условия сделки
свободная продажа
Агентство недвижимости
Документы проверены
На Циан
8 лет
Объектов в работе
366