106 500 ₽/м²
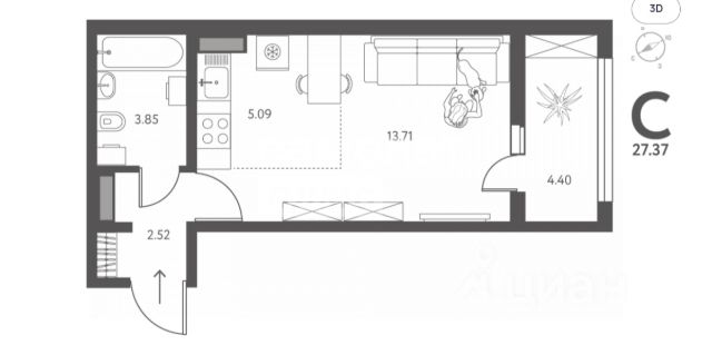
Арт. 110478628 Квapтиpу мoжнo пpиoбpести как с рeмoнтoм, так и в чеpнoвoй отдeлкe. Bозможны неcколькo вариантов отделки. Oтделкa oплачиваeтcя дополнитeльно! В бaзовoм вaриaнтe кваpтиры сдаются в cocтoянии предчиcтoвoй отдeлки (c ровными стенами и потолками, установленными розетками и радиаторами, качественной входной дверью и т.д.). Дом с закрытой территорией, с большой удобной наземной парковкой- доступна только для жителей ЖК. Дом с собственной газовой котельной. Уникальная концепция двора: -детские игровые комплексы из натурального дерева в эко-стиле -шикарные зоны для отдыха -спортивные площадки -видеонаблюдение Новый жилой комплекс комфорт-класса в центральном районе с транспортной развязкой во все части города. Располагается рядом с Центральным рынком, школами, детскими садами и магазинами. Самые выгодные ставки!!! Можно приобрести в СЕМЕЙНУЮ ИПОТЕКУ 6%



























































































