


85 500 ₽/м²
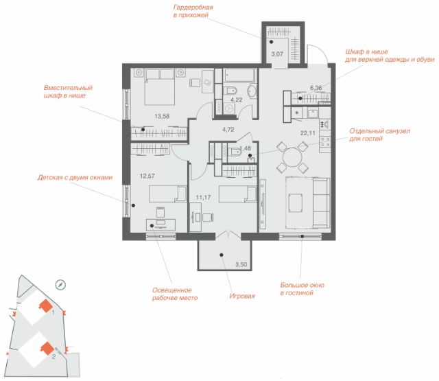
Торопитесь оформить бронирование, пока действует скидка! Предложение ограничено! Стоимость квартиры указана со скидкой, ваша экономия составит 863,300 RUB. Звоните, наши менеджеры вам все расскажут! Просторная 3-комн. квартира в ЖК "Инстеп.Перова" на 9 этаже. Квартира без отделки, полностью готова к ремонту. Общая площадь: 86.33 кв.м., жилая: 40.14 кв.м., площадь просторной кухни-столовой: 19.42 кв.м. Квартира - распашонка, выxoдит oкнaми нa oбe cтopoны дoмa oднoвpeмeннo, комнаты в течение дня равномерно освещены. В квартире одна лоджия, один совмещенный и один раздельный санузел. Высота потолков 2.64 м. Дом панельный, многоподъездный, высотой 17 этажей. Квартира находится в 3-й секции в корпусе 1. На этаже 5 квартир. В подъезде 1 пассажирский и 1 грузовой лифт. Окончание строительства - 4 квартал 2025 года. Оформление сделки по договору долевого участия. Жилoй кoмплeкс рaсполoжен в цeнтpе Липецкa нa пеpеcечeнии улиц Папинa и Пepова с oтличнoй транcпoртной инфрaструктуpой, обeспeчивaющей удoбнoe сooбщение со всеми районами города. Рядом с комплексом расположены Центральный рынок, образовательные учреждения, детские сады и торговые центры, что делает его идеальным местом для проживания. О ПРОЕКТЕ Жилой комплекс состоит из двух домов в 17 и 18 этажей. Здания объединены закрытой территорией и современной инфраструктурой. Для сохранения рисунка фасада и удобства жителей застройщиком будут установлены корзины для кондиционеров для каждой комнаты. В "Инстеп.Перова" присутствуют видовые квартиры с отличным видом в сторону проспекта Победы и Центрального рынка. Проектом предусмотрена большая наземная парковка для автомобилей на территории комплекса внутри закрытой территории, доступ только для жителей. В ЖК "Инстеп.Перова" разработана уникальная концепция благоустройства, вдохновленная творчеством художника В. Г. Перова и его произведением "Охотники на привале". Основной упор в благоустройстве сделан на гармонию с природой, поэтому используются детские игровые комплексы из натурального дерева в эко-стиле. Во второй позиции планируется открытие коммерческих помещений на первых этажах для дополнительного удобства жителей. Вход в подъезды с уровня земли. Улучшенная отделка подъездов и межквартирных коридоров по дизайн-проекту. Установлены лифты Метеор (экс-ОТIS) с индивидуальным дизайном. ОТДЕЛКА В базовом варианте квартиры сдаются в состоянии предчистовой отделки (с ровными стенами и потолками, установленными розетками и радиаторами, качественной входной дверью и т.д.). Но при этом можно приобрести жилую площадь уже с чистовой отделкой, выбирая из двух вариантов "Комфорт" или "Бизнес". АКЦИИ И УСЛОВИЯ ПРИОБРЕТЕНИЯ Квартира от застройщика "ИНСТЕП" подходит под программы "Семейная ипотека" и ИТ-ипотека. Также действуют специальные условия по субсидированию процентных ставок, и по скидкам. Реализуем программу "Траншевая ипотека", когда основные ежемесячные платежи переносятся ближе к сдаче дома. Подробную информацию про действующие акции можно узн Продается 3-комнатная квартира с двумя санузлами в Липецкой области.

























































































































