Первичная продажа



дом сдан
6 203 500 ₽
95 000 ₽/м²
Квартира в Жилом комплексе "На Депутатской" с автономной газовой котельной и закрытой территорией!
Проект аккредитован во всех ведущих банках.
Подать заявку на ипотеку по выгодной ставке поможет наш кредитный специалист (услуга бесплатная).
Одобрение от 15 минут!
На период оформления документов квартира резервируется за вами, а стоимость фиксируется.
Действует беспроцентная рассрочка от Застройщика, государственные программы и субсидии, материнский капитал.
Жилом комплекс "На Депутатской" Дом с семейными ценностями:
1. 23 уникальные планировки готовые решения для вашей комфортной жизни не нужно ничего переделывать после сдачи, мы всё продумали за вас
2. Вход в подъезды без ступеней на уровне земли удобно для колясок и велосипедов!
3. Прозрачные двери в подъезды - пространство наполнено светом и объёмом, а жители видят, что происходит внутри подъезда и снаружи во дворе
4. Увеличенные оконные проемы 50 см от пола большие окна для естественного освещения и красоты интерьера
5. Колясочные и велосипедные под охраной на первом этаже не нужно поднимать с собой на этаж и искать место для хранения в квартире
6. Подземный паркинг с лифтом на любой этаж
7. Закрытый двор с двумя уровнями игровые площадки для детей разных возрастов и зоны отдыха взрослых
8. Высокий потолок 2,72 м и отсутствие выступающих конструкций на стенах и потолке
9. Высокая энергоэффективность дома рациональный расход электроэнергии, отопления и других ресурсов, а значит траты жильцов на оплату коммунальных услуг ниже
10. Развитая инфраструктура 5 минут от остановки, в 15 минутах от центров притяжения города Набережная, Нижний парк, торговые центры, рестораны и кафе
Каждому покупателю специальные предложения от компаний-партнеров по КЛУБУ ВСЕМОГУЩИХ - ваша экономия при ремонте и создании уюта в вашей новой квартире и еще много полезного для вас!
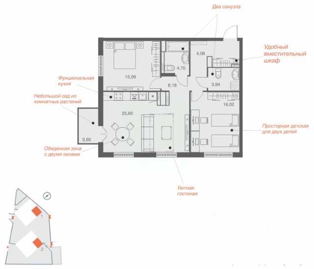
Финансирование строительства от АО "Банк ДОМ.РФ". 2-комнатная квартира 2-комнатных квартир в На Депутатской в Липецке.































































































